Domy

Domy dopasowane są do różnorodnych potrzeb mieszkańców. Znaczna elastyczność funkcjonalna wnętrz budynków pozwala na dostrojenie budynku dla własnego stylu życia. Do każdego domu w standardzie oferowany jest wyjątkowo obszerny zadaszony taras ogrodowy.

Nowa Niwnica oferuje 3 typy: Dom Kompakt, Dom Komfort oraz Dom Parterowy.

Dom Kompakt

Dom Kompaktowy o powierzchni ok. 73m2 domyślnie 4 pokojowy jest budynkiem dwukondygnacyjnym z przestrzenną strefą dzienną na parterze z i wygodną przestrzenią prywatną na piętrze. W domyślnym układzie wnętrza na parterze ulokowano pomieszczenie techniczne,  toaletę oraz przestronny pokój dzienny z jadalnia i kuchnią mającą możliwość jej wydzielenia. Na piętrze znajduje się jasny korytarz ze świetlikiem dachowym, 3 dobrze pokoje oraz wygodna łazienka.

Dom Komfort

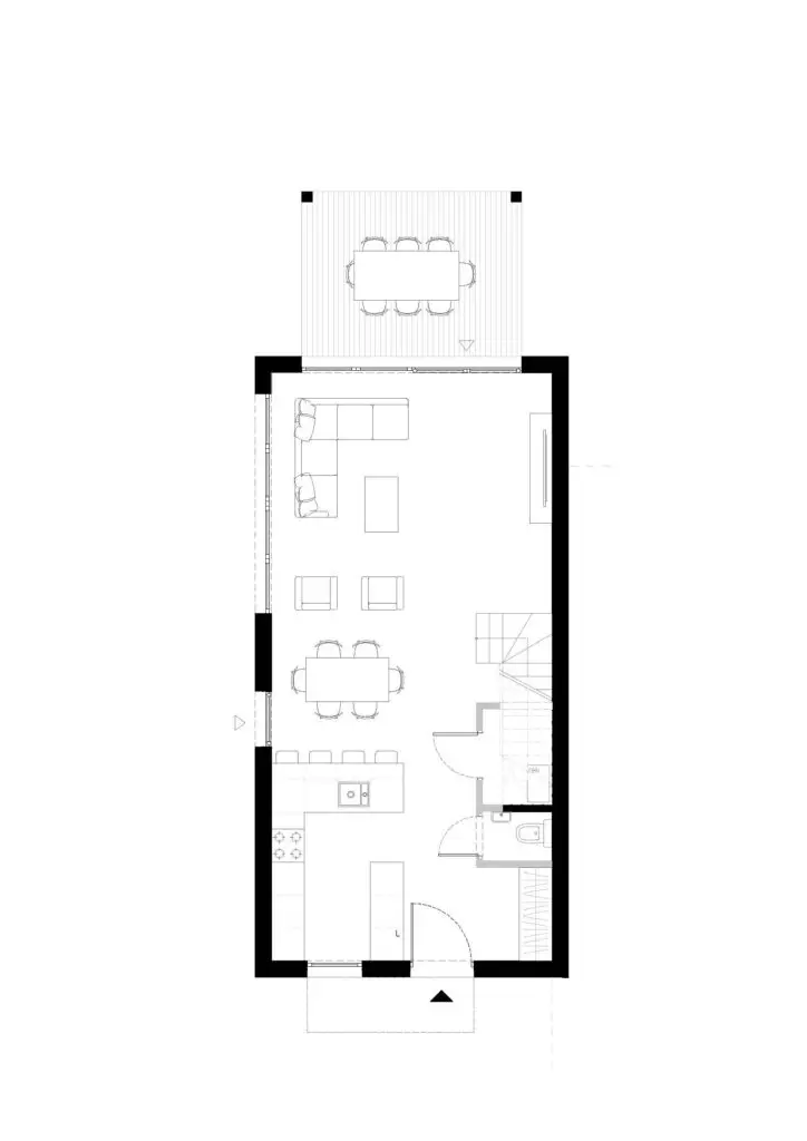
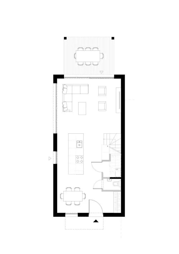
Dom komfortowy o powierzchni ok. 103m2  w dwóch wersjach zawiera domyślnie  4 lub 5 pokoi i oferuje wyjątkowe na rynku sypialnie z garderobą oraz wydzielenie pomieszczenia na pralkę oraz spiżarnię w pomieszczeniu gospodarczym. Parter budynku stanowi  otwartą przestrzeń rozświetloną między innymi przez dwa imponujące panoramiczne przeszklenia. Kuchnia ma możliwość wydzielenia. Poziom parteru obejmuje również toaletę i pomieszczenie gospodarcze. Dom komfortowy w wersji 4 pokojowej oferuje na poziomie piętra jasny korytarz oświetlony świetlikiem, pomieszczenie pralni, wygodną łazienkę oraz 3 pokoje, z których 2 o niepowszechnej na rynku powierzchni przestronne  umożliwiające wkomponowanie w nie sypialni z  pojemną garderobą. Wersja 5 pokojowa dla ceniących prywatność zawiera na piętrze piętra jasny korytarz oświetlony świetlikiem, pomieszczenie pralni, wygodną łazienkę i aż 4 osobne pokoje.

Dom Parter

Dom parterowy dzięki skupieniu wszystkich funkcji na jednym poziomie jest dobrym wyborem dla wszystkich osób preferujących brak schodów we wnętrzu. Zawiera on znacznych rozmiarów pokój dzienny z możliwością ulokowania wyspy kuchennej i oświetlony panoramicznymi oknami, 2 wygodne sypialnie, garderobę, przestronną łazienkę oświetloną świetlikiem dachowym oraz pomieszczenie gospodarcze.

Dom Komfort - aranżacja parteru

Otwarta przestrzeń
Wydzielona kuchnia
Dodatkowy pokój lub gabinet
Centralna wyspa kuchenna

Dom Komfort - aranżacja piętra

3 pokoje
4 pokoje